CASE DESCRIPTION

项目名称:郴州度假酒店--浮白水间 /The Floating Sanctuary
项目类型:度假酒店
项目地址:湖南省郴州市
项目面积:3500㎡
设计方:藤麦设计TranDadsionDesign
设计时间:2024年
设计类型:建筑设计
主创设计师:藤麦
设计团队:藤麦,张亮,何斌


核心设计理念:


通过极简的体量操作与解构主义手法,将一座废弃水厂重塑为悬浮于自然之上的“观景器”,实现人工构筑物与江岸环境的诗意对话。

undefined

背景与文脉
项目基地位于一条江流蜿蜒处的小山包上,原址为一座已废弃的自来水厂。场地本身具有强烈的自然与工业交织的历史痕迹:一侧是开阔的江景与远方的城市轮廓,另一侧是繁茂的山林植被。设计的核心挑战在于如何让新建筑既能回应场地的工业记忆,又能以谦逊而独特的姿态融入并凸显这片优美的自然环境,而非与之竞争。业主的愿景是打造一个能让人彻底放松、专注于自然景致的精品民宿 。


概念生成与设计策略


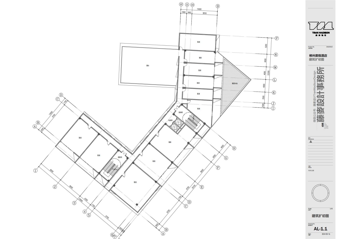
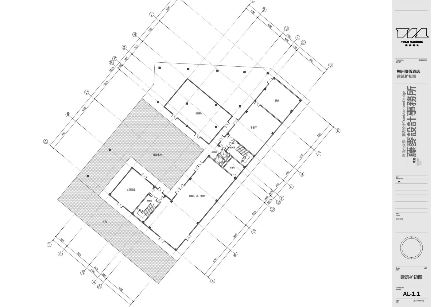
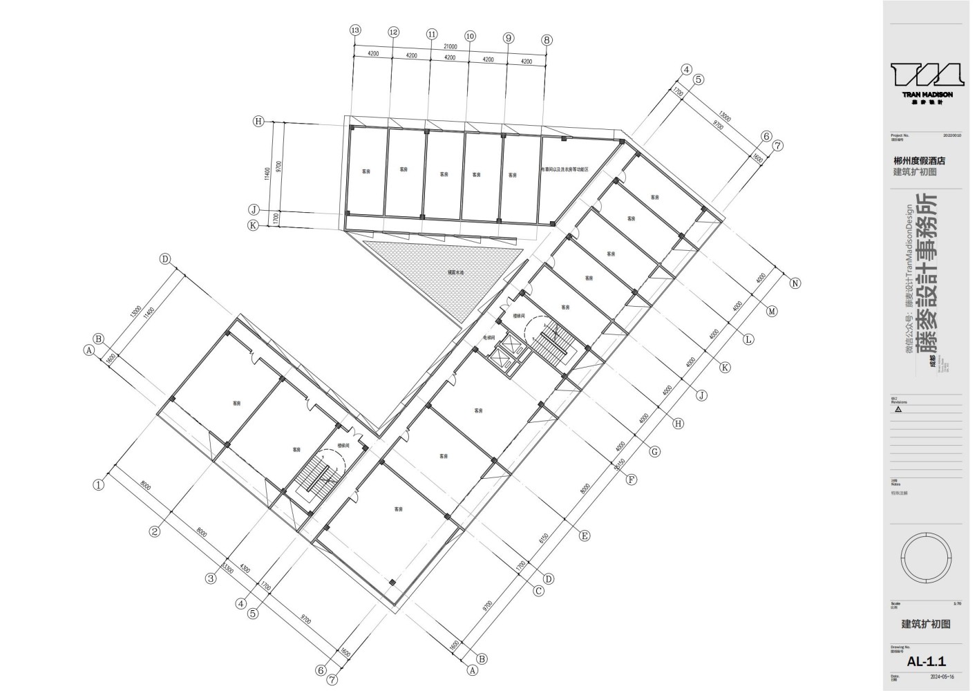
设计从“悬浮的观景盒子”这一核心意象出发。为削弱建筑在自然中的体量感,并创造一种轻盈、透明的存在,设计团队采取了分层处理的策略。建筑首层除结构柱外,几乎完全采用通高落地玻璃,将内部公共空间(如大堂、咖啡厅)彻底向自然环境打开,实现视觉与空间的完全通透 。最具巧思之处在于,将承重立柱巧妙地装饰成一组大小不一、形态不规则的“大石头”。这一设计不仅隐喻了山丘的基石,更在视觉上使纯净的白色二层及以上体量仿佛轻盈地搁置在这些“巨石”之上,从而形成了强烈的“悬浮”效果,回应了“浮”的理念 。
对于上部楼层,设计则运用了解构主义手法。客房窗口并非简单的开洞,而是进行了深浅不一的凹凸处理,形成丰富的立面阴影和节奏感。这种手法在保持极简主义纯粹性的同时,打破了大型体量的单调,赋予建筑一种“重”与“轻”的对比趣味,仿佛体量是由多个白色盒子错动、叠合而成 。


空间体验与材料语言


进入建筑内部,视线的通透性与连续性成为空间体验的主线。首层的完全开放确保了从入口处便能将江景尽收眼底。客房内均配置大面积落地窗,确保每一位住客在室内任一主要区域都能享受到无遮挡的全景视野,将江、天、山、城的变化框成一幅幅生动的画卷 。
材料选择上,整体以白色和浅色调为主导,外墙采用具有肌理的白色涂料,营造质朴而纯粹的视觉感受。室内延续极简风格,多使用原木、微水泥等天然或哑光材质,避免任何多余的装饰,让人们的注意力完全聚焦于窗外变幻的自然景观 。光影作为无形的材料,透过各种形状的窗洞在室内游走,在纯白的墙面和地面上刻画下时间的痕迹,进一步强化了空间的艺术感和静谧氛围 。




结语


“浮白水间”民宿项目超越了简单的旧建筑改造。它通过对体量的消解、对视线的引导以及对材料的极致运用,成功地将工业遗迹转化为一个融入自然的静谧精神栖所。它不仅是提供住宿功能的场所,更是一个引导人们与自然、与自我进行深度对话的媒介,展现了极简主义建筑在特定文脉中所能抵达的深远意境与艺术价值。